Toon onbeantwoorde berichten | Toon actieve onderwerpen Het is nu 28 feb 2026 17:51



Antwoord op onderwerp  [ 5 berichten ] 
Spiegelaansluiting 
Auteur Bericht
PorscheForum Rakker
Avatar gebruiker
911 SC 3.0
Annerveenschekanaal
Bericht Spiegelaansluiting
Vraagje
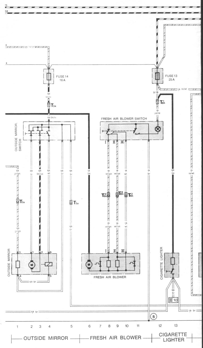
In het bedradingsschema van mijn SC911 83 voor de spiegelaansluiting staat een symbool van een motortje getekend voor naar links en naar rechts, daarnaast staat een symbool van een relai een vierkantje met een schuine streep er door. Wie weet waar dit voor is ?Als ik er spanning op zet hoor ik een klik. :idea:


25 jul 2010 10:47
Profiel
PorscheForum Junkie
Avatar gebruiker
3.2 carrera cabrio "88
stein lb
Bericht Re: Spiegelaansluiting
heb je hiet toevallig ook een afbeelding van . ik heb alleen de schema`s vanaf 1984.
In de haynes kan ik hem ook niet vinden
_________________________________________
Ferdinand Piech op de vraag van Enzo , : waarom is de 917 nog steeds luchtgekoeld "luft kannst du während einem rennen nicht verlieren "


1:18 schaalmodellen te koop : kijk hier voor de lijst

en hier voor de foto`s


25 jul 2010 16:29
Profiel WWW
PorscheForum Rakker
Avatar gebruiker
911 SC 3.0
Annerveenschekanaal
Bericht Re: Spiegelaansluiting
Hallo Dannyl
Hier mijn afbeelding.


Bijlagen:
911_electrical_82SC_Part4-1.jpg
911_electrical_82SC_Part4-1.jpg [ 115.45 KiB | 1039 keer bekeken ]
25 jul 2010 17:02
Profiel
PorscheForum Rakker
987
Twente
Bericht Re: Spiegelaansluiting
Het symbool is van een ( je gaf het zlef al aan ) een relais

Dat is ook de klik die je hoort :wink:

Is het misschien de switch tussen links rechts en boven beneden?

Als er slechts 1 motortje in de spiegel zit, dan zal er toch iets omgeschakeld moten worden tussen links rechts en boven / onder ? ivm de verstelling ?

Ik doe een gok, dus wie het weet mag het zeggen..

In mijn SC zat 1 schakleaar met 4 standen, mogelijk heet dit relais dar iets mee te maken?
_________________________________________
Groeten uit Twente


26 jul 2010 0:46
Profiel
PorscheForum Rakker
Avatar gebruiker
9116001
Bericht Re: Spiegelaansluiting
voor zover ik kan zien in het schema zorgt het relais (het blokje) ervoor dat de polaritieit naar de moter wordt gewisseld, m.a.v plus en min worden gewisseld wat resulteerd in een moter die links of rechts draait. --> dus kantelen van een spiegel.


27 jul 2010 22:48
Profiel
Geef de vorige berichten weer:  Sorteer op  
Antwoord op onderwerp   [ 5 berichten ] 

Wie is er online

Gebruikers op dit forum: Geen geregistreerde gebruikers.


Je mag geen nieuwe onderwerpen in dit forum plaatsen
Je mag niet antwoorden op een onderwerp in dit forum
Je mag je berichten in dit forum niet wijzigen
Je mag je berichten niet uit dit forum verwijderen
Je mag geen bijlagen toevoegen in dit forum

Zoek naar:

   
Powered by phpBB © 2000, 2002, 2005, 2007 phpBB Group. • Statistieken
www.porscheforum.nl is niet verbonden aan Porsche AG of Pon Porsche Import.